四川彭山宏源机电科技开发有限公司

产品展示

PRODUCT

移动式专用钎焊机

移动式专用钎焊机

移动式专用钎焊机
产品描述
参数

移动式专用钎焊机

  目      录  

1 安全注意事项...........................................3

2 安装注意事项...........................................3

3 用途与特点.............................................5

4 主要技术参数...........................................6

5 操作说明...............................................6-7

6 外形结构图.............................................8-9

7 使用与维护.............................................10

8 控制原理图........................................ ....10-11

 

1.安全事项

说明书中所描述的产品根据以下标准进行设计、制造:

JB/T 9529-1999  《电阻焊机变压器 通用技术条件》

JB/T 10110-1999 《电阻焊机控制器 通用技术条件》

 GB 15578-2008  《电阻焊机的安全要求》

在参照说明书进行正确操作的情况下,产品将不会对用户人身或财产造成伤害。 但是,风险仍然存在!

所以,为了安全使用,请在安装、使用该产品前仔细阅读这些与安全相关的注意事项,防止对使用者及其他人造成危害和损伤。  

1.1本产品中使用的警告标志

31.png     高压危险的警告!

 

32.png     用于保护性接地!

2.安装注意事项

2.1安装前

焊机在安装前,应仔细检查设备所有紧固件,看有无松动和脱落的现象,以防砸伤人和设备。

焊机的吊挂高度:焊机的底部距地面应大于1.9米,吊具应能牢固承受1.5倍于焊机重量的悬挂。

焊机在吊挂和纵横向运行空间上,应留有足够的余地,以防碰撞伤及设备器件。

焊机接有三相AC380V电源,安装、操作和维修时必须严格遵守技术安全保护的基本条例。

2.2安装使用条件

 

冷却水压力应低于0.3MPa,冷却水箱应大于4个立方(自然冷却)。

焊机的主进出水、进气接头直径为32毫米。

焊机的电源输入线应用YC级别的橡胶多股软铜线,QH-160KVA应不得小于70mm,QH-200KVA应不得小于90mm2设备应通以规定的交流电压,超出指定电压范围将会损坏设备,并有可能引起火灾。

焊机必须可靠的接地,否则在意外电故障时,将会导致电击。

◆冷却水缺失或流量不足将可能导致设备损坏。

摘除设备上的温度开关也可能导致设备损坏。所以焊接过程中切记通冷却水。

2.3调试注意事项

◆在安装不彻底的情况下通电操作将可能导致人身伤害或财产损失。

操作前应保证安装彻底、完备,控制器门保持关闭。

在确认水电气安装无误后方可送电调试。

忽视或对故障信息的错误理解将可能导致人身伤害或财产损失

2.4使用过程中

焊机配套控制器上的紧急停止开关,系用于设备遇特殊情况时的停机,不得关机使用。

焊接时请不要将手、手指放入电极之间。

◆冷却水缺失或流量不足将可能导致设备损坏。

◆摘除设备上的温度开关也可能导致设备损坏。

所以,焊接过程中切记通冷却水,本焊机较长时间停止工作时,必须切断电源、水源和气源,并将冷却水排放干净,以防低温时冻坏焊机

2.5使用过程中安全注意事项

◆请不要在焊接中或焊接终了以后马上触摸焊接部位或电极。

◆工件焊接部位及电极、支架等部位会产生高温。

◆可能会引起烫伤,请不要触摸。

◆焊接过程中可能有飞溅,飞溅如果直接接触皮肤,会造成烧伤。如果飞溅进入眼睛可能会造成失明。

◆请使用保护手套、长袖服装、革制的围兜等防护服,请使用保护眼镜。

2.6日常保养注意事项

本焊机配有液压泵站使用前加装或检查是否有足够的液压油。

选配焊钳时,请注意焊钳与焊接电缆连接的紧固件牙距是否配套吻合。在不配套时,严禁使用麻丝、生料带等绝缘物进行紧固和堵漏。

本焊机严禁在不通水、堵塞等情况下焊接。


3 用途与特点

、用途:配用技术要求规定的微机焊接控制器和焊钳后,焊钳电极压紧两零件的钎焊处,电流通过钎焊面形成回路,靠通电中钎焊面石墨块产生的电阻热加热到钎焊温度实现焊接。可用于各种大型电机,变压器线圈接头钎焊。

、结构形式:模块化设计,由焊接变压器,控制器,油泵站,水路水泵增压器,专用油压焊钳,吊具组成,具有性能稳定可靠,维护简单,分解运输方便的特点,焊接变压器矽钢片为进口新型结构,采用整体真空环氧浇注模式,焊钳由油缸驱动电极压力达到950KG。

、额定电源:AC 380V    50HZ  单相;

、额定容量:160-200KVA;

、负载持续率:50%;

、空载电流:额定电压下均低于国家标准10%以上;

、额定次级空载电压:23-26V;

、次级短路电流:18-20KA(标准短路电缆)

、绝缘等级:F级;

、内部阻抗≤250uΩ

、温度保护:具有专用温度保护元件;

、配有焊钳摇臂式滑轨;

、电源输入方式:由专用绝缘防水的电缆定位装置;

、具有焊钳更换功能 ;

15. 通水电缆采用250平方,单根长度3-4米。

16. 液压系统

  ①.耐压力:10MPa无泄漏;

  ②.油缸直径63,采用进口密封件,

  ③.泵站采用1.5瓦铜芯电机。

、水路系统

  ①.耐压力:0.6MPa无渗漏,装有铜质或不锈钢水过滤器;

  ②.水路元件:全部采用铜件和不锈钢件;

  ③.冷却水流量:≥12L/min;

④.焊机自带增压水泵,需另外配水箱。

5.焊机具有进水过滤,水流量不足报警功能。


4.主要技术数据

型   号

参 数

QH-160

QH-200

额定容量

160KVA

200KVA

额定电压

AC380V

AC380V

初级电流

421A

526A

负载持续率

50%

50%

次级电压

23.75V

26.2V

大短路电流

≥18KA

≥20KA

绝缘等级

F

F

匝数比

16:1

14.5:1

冷却水消耗量

45L/min

45L/min

冷却水压力

0.3MPa

0.3MPa

冷却水温度

0-300C

0-300C

液压系统压力

0.5—1.5MPa

0.5—1.5MPa

空气相对湿度

≤90%

≤90%

外形尺寸(不含吊杆)

1200×850×1000

1200×850×1000

重量

480Kg

520Kg

 

   5.操作说明

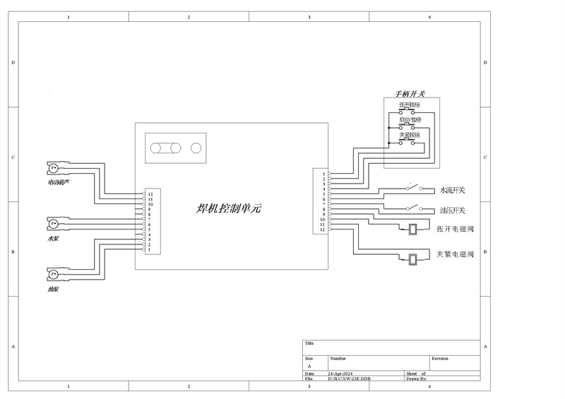
5.1手柄按钮使用

【夹紧按钮】位于手柄上方,按下焊钳开始加压松开即停止,当夹紧工件并且油压上升油压开关闭合时进入夹紧锁定状态,此时松开按钮也仍然保持夹紧。

【开始/暂停】位于手柄下方只有在夹紧状态时有效,短按一下开始脉冲加热模式,长按3秒进入持续加热模式。再一次按下即暂停加热,再按又开始加热。直至设定的加热总时长结束。如还需加热可进行手动模式,按住通电加热松开停止。

         *焊钳张开状态下按住此按钮可显示当前系统温度和设定的上限温度。

【张开按钮】加压过程中按下即张开焊钳,加热状态下可立即停止加热,再次按下可张开焊钳。报警状态时可用于复位。

参数恢复出厂设置:当参数设置不正确焊机无法正常使用时可进行此操作,按住[开始/暂停]按钮不放并快速连续按压[张开按钮]超过5次。

 

5.2操作面板PLC参数调整说明

 

按压【SET】键保持2秒进入参数设置状态,显示【E_XX】按【ENT】键→【UP】+或【DOWN】-进行调整,以下类同。再次按压【SET】2秒退出。

【E 00】焊接热量:范围40~380V调整变压器初级电压从而控制焊接时的电流大小。

【E 01】焊接通电总时长:范围1~300秒根据实际需要设定。总时长结束后再次按开

始按钮则执行手动加热模式,即按住加热松开停止。

【E 02】脉冲时间:脉冲加热模式状态每次通电的时长,范围1~60秒。

【E 03】暂停时间:脉冲加热模式状态暂停加热时间,范围0.5~30秒。

【E 04】电流缓升速率:范围1~100值越大电流爬升越慢。

【E 05】温度上限:范围50~120摄氏度,当焊机系统温度达到设定值时进入保护状态。

 

6. 外形图

33.jpg

34.jpg


35.jpg


7. 焊机的维护

焊机在工作过程中,应保证有足够的冷却水温度在5-30C°,海拔高度不超过3000米。严禁不通水或低流量进行焊接运行。

    焊机必须定期清除灰尘和异物,以避免水、气、油污和灰尘的长期污染。

    焊机必须定期检查水路、油路系统,尤其要严防水路的堵塞,水路过滤器滤网每月清理一次,油压表要定期检查校验。

    焊机必须定期检查接地是否良好。

焊机较长时间停止工作时,必须切断电源、水源和气源,并将冷却水排放干净,以防低温时冻坏焊机。


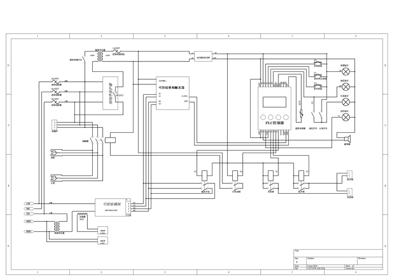
8. 控制原理图


36.jpg37.jpg

上一个

产品中心

产品现以遍及汽车、摩托车制造、家用电器、五金制品、轻工机械、防盗门、金属箱柜等行业

四川彭山宏源机电科技开发有限公司

四川省彭山宏源机电科技开发有限公司是以研究、开发、生产各类高科技含量的 节能电阻焊机为主,集科研、制造、销售、为一体的高新科技企业。公司现有生产场地6000m,年生产能力2000台以上,生产设备与检测设施 、齐全。

地址:四川省彭山青龙镇上西横街
客服热线:028-37660188
客服邮箱:414644772@qq.com

CopyRight  © 2020  四川彭山宏源机电科技开发有限公司  All Rights Reserved.